The BY20M Explorer from BRIZO YACHTS represents a highly versatile explorer platform built upon the brand’s long-standing maritime heritage, structural strength, and uncompromising build quality. Developed for owners who require true offshore capability combined with flexible onboard functionality, the BY20M Explorer is available in two distinct versions—each designed to fulfill a specific role while maintaining the same proven seaworthy foundation.
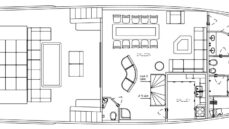
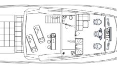
The first configuration is a fully equipped superyacht version, offering an exceptional level of space and onboard possibilities for a yacht of this size. Carefully engineered layouts maximize interior volume and usability, creating living areas that rival much larger yachts. Generous cabins, refined social spaces, and expansive exterior decks allow the yacht to function as a capable long-range cruiser, delivering comfort, privacy, and functionality well beyond what is typically expected in the 20-meter category.
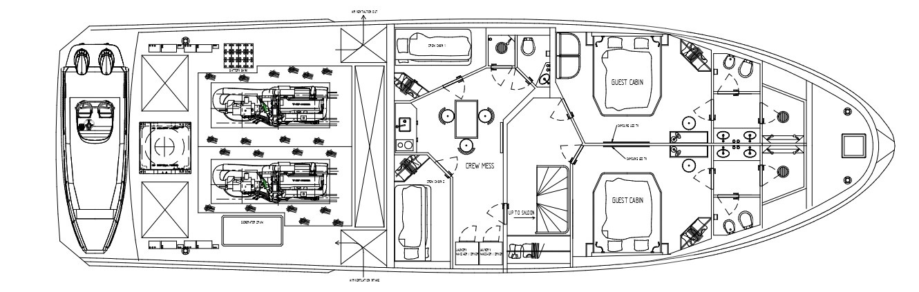
The second configuration is the purpose-built support vessel version, designed as a dedicated logistics and expedition platform. In this role, the BY20M Explorer offers outstanding carrying capacity for tenders, water toys, and expedition equipment. The vessel is capable of transporting assets such as a 7-meter RIB, mini submarine, ATVs, and other exploration gear, supported by a heavy-duty marine crane that allows safe lifting and deployment directly to shore or water. This makes it an ideal companion vessel for larger yachts or for independent exploration missions.
Regardless of configuration, seaworthiness remains central to the design. The robust hull structure and carefully engineered deck layout ensure stability, safety, and predictable handling even in demanding sea conditions. The yacht is built to operate confidently across long passages and challenging environments where reliability is essential.
Interior layouts and operational spaces are highly customizable, allowing each vessel to be tailored precisely to the owner’s intended use—whether as a luxury expedition yacht or a highly capable support vessel. Large open deck areas provide generous operational flexibility without compromising onboard comfort.
Built on decades of shipbuilding expertise and Brizo’s commitment to durability and engineering integrity, the BY20M Explorer delivers a rare combination of adaptability, capability, and enduring quality.
The BY20M Explorer proves that true explorer design is not defined by size—but by capability.